Beschrijving

Ruim hoekappartement met 4 slaapkamers, nieuwe keuken, airco en drie buitenruimtes in de geliefde Generalenbuurt

Ben je op zoek naar een royaal en instapklaar appartement op een centrale plek in Eindhoven? Dit lichte en perfect ingedeelde hoekappartement (maisonnette) biedt met vier volwaardige slaapkamers, een nieuwe keuken, airconditioning, twee balkons en een ruim terras het complete woonpakket. Je woont hier in de sfeervolle en geliefde Generalenbuurt, onderdeel van Woensel-Zuid, een omgeving die bekendstaat om zijn groene plantsoenen, praktische voorzieningen en rustige straten.

De ligging is ideaal: winkels, supermarkten, horeca en scholen liggen direct in de buurt, en het plantsoen met speeltuin tegenover het complex maakt de omgeving extra kindvriendelijk. Het bruisende stadscentrum van Eindhoven en Station Eindhoven zijn beide op korte fietsafstand bereikbaar, waardoor je snel in het centrum bent voor werk, winkelen of een avond uit. Ook de ligging ten opzichte van de belangrijkste uitvalswegen is uitstekend: binnen enkele minuten rijd je richting de A2, A50 of A58, wat deze locatie perfect maakt voor forenzen.

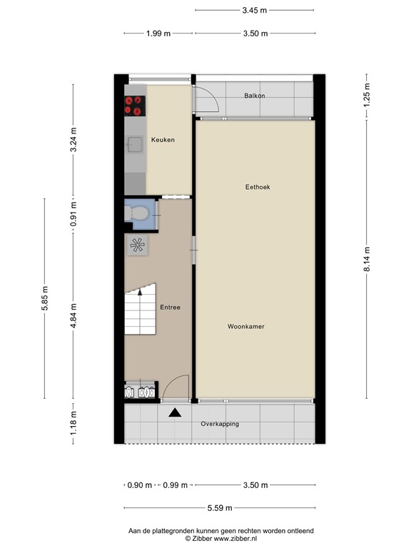
Via de centrale entree met trapopgang bereik je het appartement op de eerste verdieping. In het souterrain bevindt zich de eigen berging met elektra, ideaal voor fietsen en extra opslag. Je komt binnen in een ruime hal met garderobe, meterkast, toilet en trapopgang. De brede doorzonwoonkamer valt meteen op door de grote ramen en de strakke afwerking. De airconditioning zorgt voor extra wooncomfort. Aan de voorzijde ligt het eerste balkon, bereikbaar via de keuken.

De keuken is volledig vernieuwd in 2025 en uitgerust met een inductiekookplaat, combioven magnetron, vaatwasser, koelkast, vriezer en veel praktische opbergruimte. Aan de achterzijde ligt het grote terras, een heerlijke plek om buiten te eten of te ontspannen.

Op de tweede verdieping bevinden zich vier ruime slaapkamers. De hoofdslaapkamer aan de voorzijde beschikt over airconditioning. De badkamer is voorzien van een douchecabine, wastafelmeubel, radiator en aansluiting voor de wasmachine. Op de overloop bevindt zich een aparte bergkast met de cv ketel uit 2009.

Belangrijkste pluspunten op een rij:

* Woonoppervlakte 101 vierkante meter
* Vier volwaardige slaapkamers
* Nieuwe keuken uit 2025
* Airconditioning in woonkamer en hoofdslaapkamer
* Drie buitenruimtes: twee balkons en een groot terras
* Gelegen in een groene, geliefde wijk met winkels en horeca direct om de hoek
* Centrum en station eenvoudig per fiets bereikbaar
* Snelle aansluiting op belangrijke snelwegen

Kenmerken